項目概況
今天這個雙拼別墅結(jié)合了農(nóng)村和城市特色,農(nóng)村的房子總是少不少門頭、玄關(兼堂屋),城市的排屋又是開間小,大進深(為了可以多做幾戶)。
本項目總建筑面積861.84㎡,其中一層建筑面積為219.9㎡,二層建筑面積為219.9㎡,三層建筑面積為202.14㎡,地下室建筑面積為219.9㎡。

▲總平面圖
戶型設計

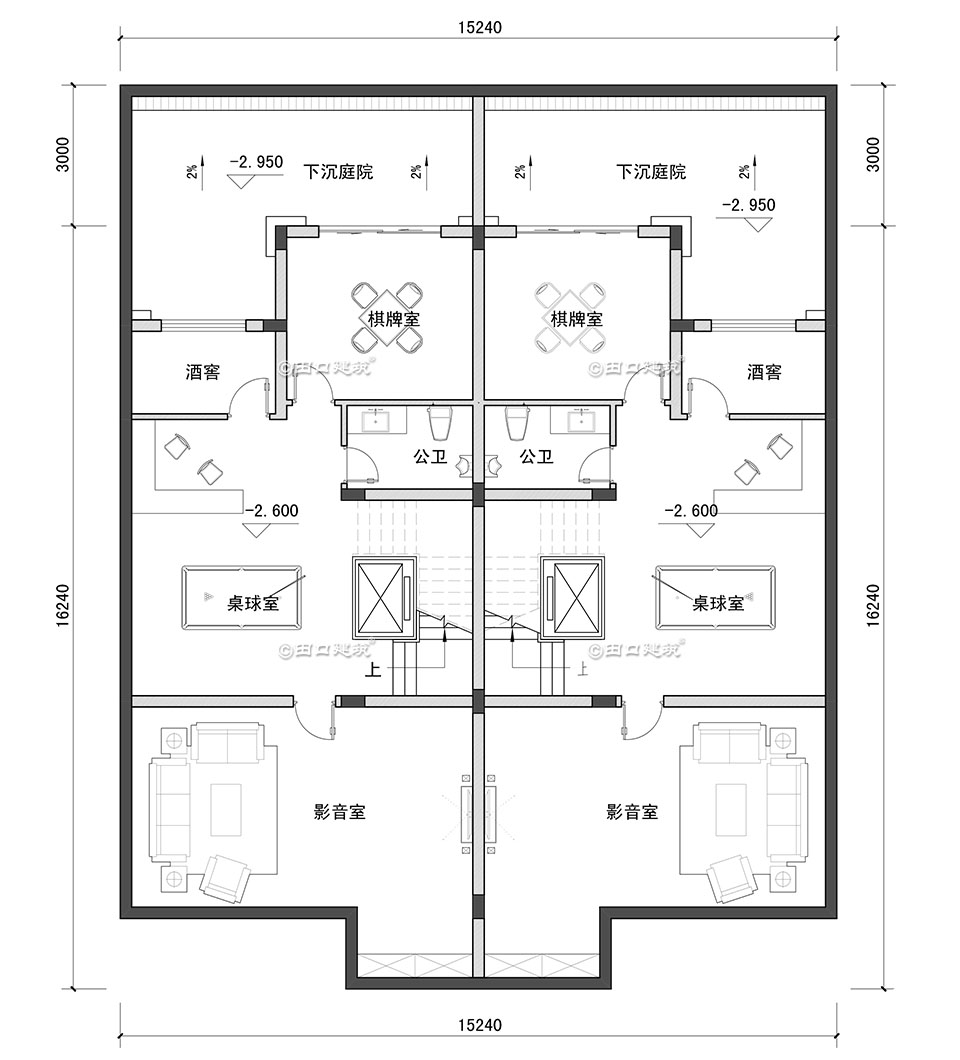
▲地下室平面圖
地下室(每戶):影音室、桌球室、棋牌室、酒窖、下沉庭院、衛(wèi)生間;

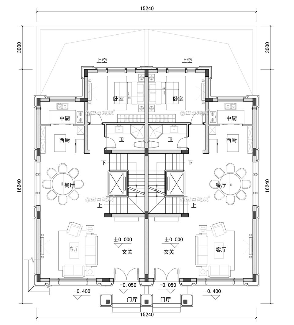
▲二層平面圖
一層(每戶):門廳、玄關、客廳、餐廳、中西廚、臥室、衛(wèi);

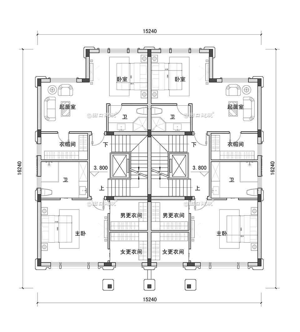
▲三層平面圖
二層(每戶):套房1(帶男女衣帽間、衛(wèi)生間)、套房2(帶起居室、衣帽間、衛(wèi)生間);

▲三層平面圖
三層(每戶):套房1(帶書房、衣帽、衛(wèi)生間、露臺)、套房2(帶衛(wèi))、起居室;
造型設計

▲東南角鳥瞰圖

▲西北角鳥瞰圖

▲東北角鳥瞰圖

▲正立面透視圖

▲東南角透視圖

▲東立面透視圖

▲北立面透視圖
END