項目概況
本改造項目位于杭州臨安,一層建筑面積為196.3㎡(擴建48.3㎡),二層建筑面積為149.2㎡(擴建22.2㎡),三層建筑面積90.6㎡(擴建52.7㎡);

▲改造后正立面圖
戶型設計

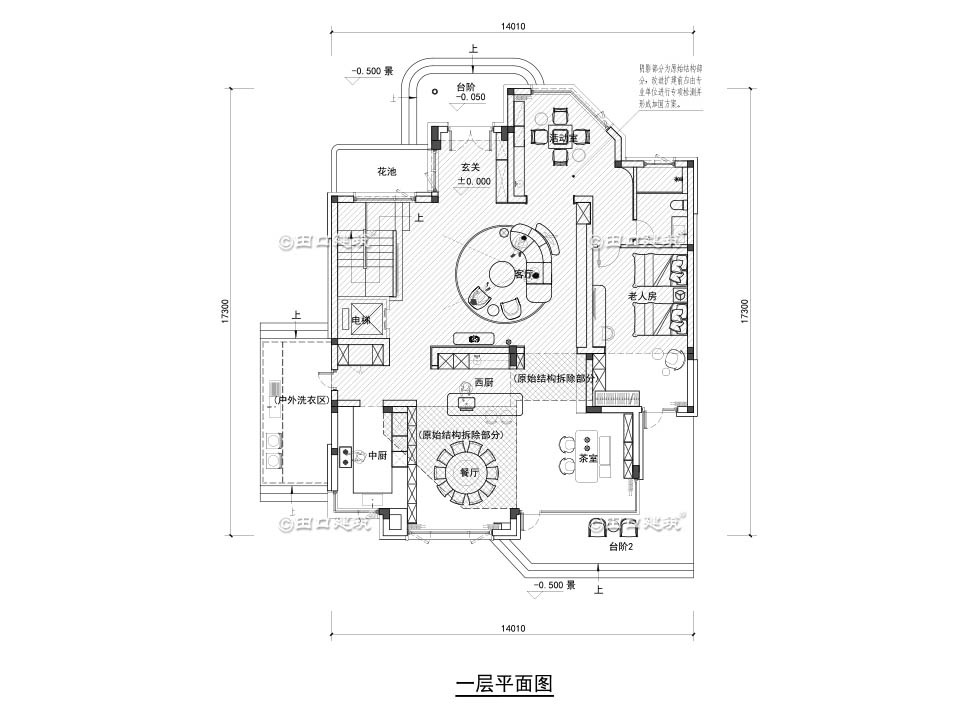
▲一層平面圖
一層:門廳,玄關、客廳、中西廚房、餐廳、茶室、電梯、活動室、老人房、公衛(wèi);(陰影部分為原始結(jié)構(gòu))

▲一層平面圖
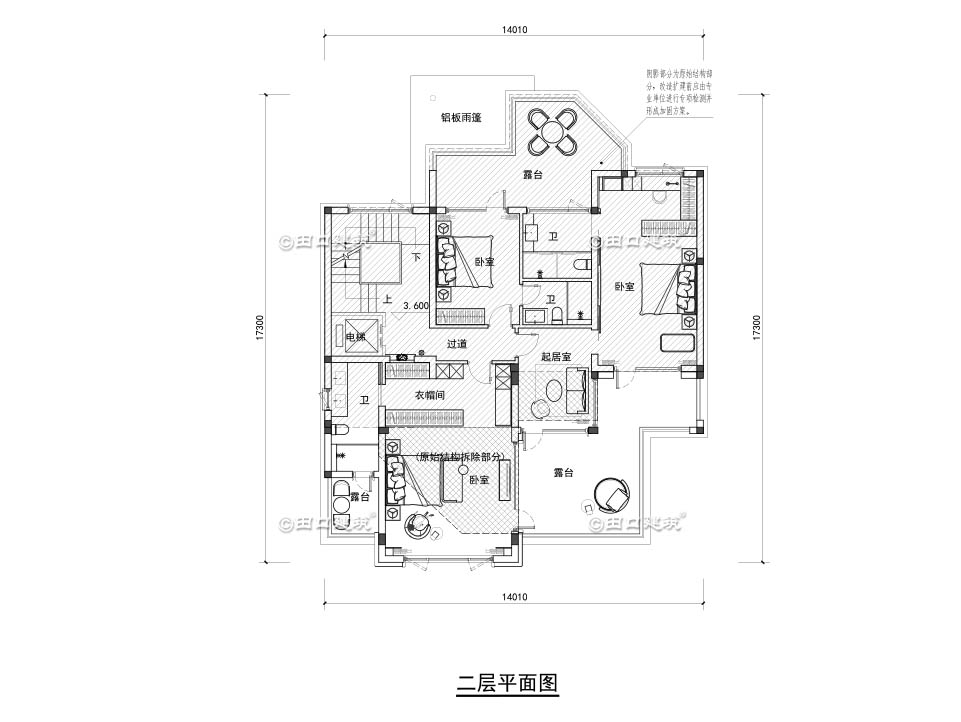
二層:三個套房、起居室、前后三個露臺;(陰影部分為原始結(jié)構(gòu))

▲二層平面圖
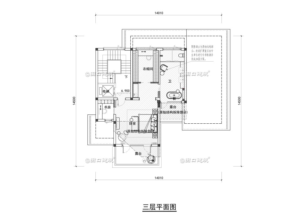
三層:整層就是一個大套間;(陰影部分為原始結(jié)構(gòu))
造型設計

▲改造對象正立面

▲改造后正立面

▲改造后背立面

▲改造后鳥瞰圖

▲改造后鳥瞰圖
END