項目概況
本項目位于紹興諸暨次塢,總建筑面積798㎡,其中地下室建筑面積233㎡,一層建筑面積為197㎡,二層建筑面積為197㎡,三層建筑面積171㎡。

▲鳥瞰圖
戶型設計

▲地下室平面圖
地下室:電梯直下、影視廳、健身房、休息室、桌球室、儲藏室、公衛(wèi);

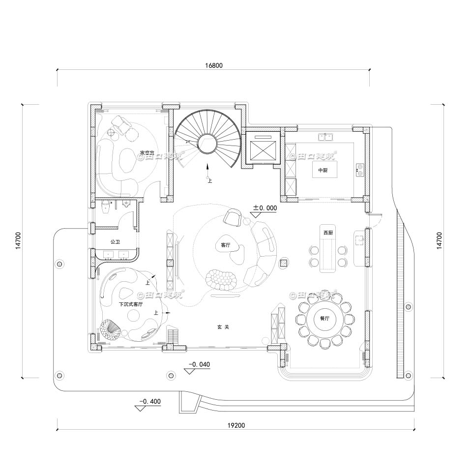
▲一層平面圖
一層:玄關、挑空中央客廳、下沉室小客廳、餐廳、中西廚房、家庭室、公衛(wèi);

▲二層平面圖
二層:兩個大套間、健身房、超大陽臺;

▲三層平面圖
三層:三個套間、洗衣間、超大陽臺;
造型設計

▲東南角鳥瞰圖

▲西北角鳥瞰圖

▲正立面透視圖

▲東南角透視圖

▲西北角透視圖
END