項目概況
業(yè)主看過我們設計的一個新中式別墅,特別喜歡,委托我們設計同一風格的的雙拼別墅。
房子地基朝北,北面為主立面,兩兄弟合建,中間避免不了采光通風不好,故業(yè)主主動提出做中庭,可以利用中庭采光、通風換氣,夏季還可以在中庭活動,何樂而不為。
此別墅占地面積273.1平方米,二層277.7平方米,二層283.3平方米。

▲鳥瞰圖
戶型設計

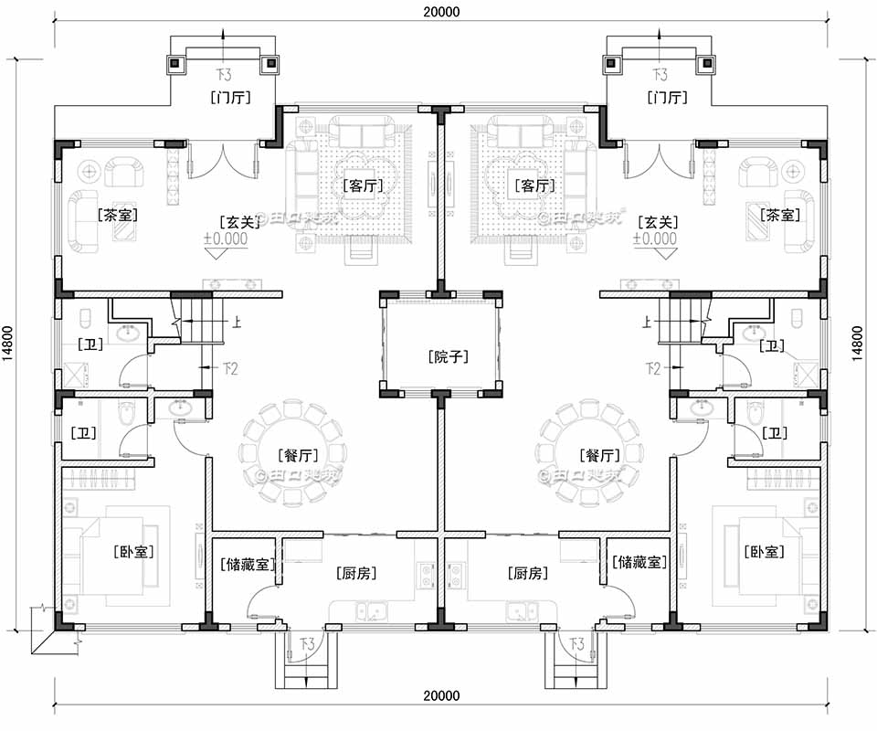
▲一層平面圖
北入戶,進門后兩側是茶室和客廳,客廳挑空設計,非常氣派,再往里走是廚房、餐廳,另一邊是帶衛(wèi)生間的臥室,廚房設后門通往后門的輔助用房。中庭是整個房子的中心,所有公共空間均圍繞中庭布置(左右兩戶對稱);

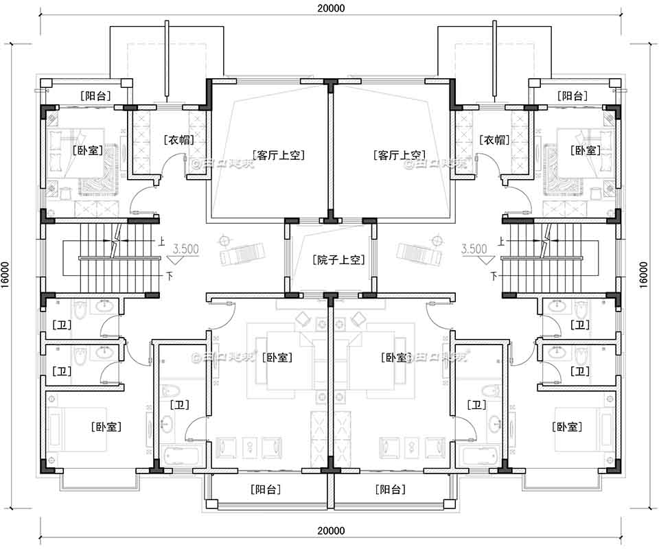
▲二層平面圖
一個大套房(帶衛(wèi)生間、陽臺),一個小套房,一臥室,衣帽間,公衛(wèi);

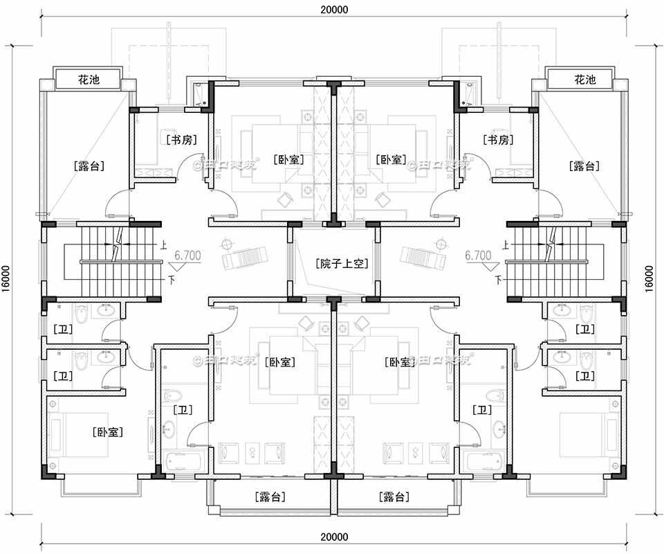
▲三層平面圖
一個大套房(帶衛(wèi)生間、露臺),一個小套房,小書房,公衛(wèi)、一露臺;
造型設計

▲鳥瞰圖

▲南立面透視圖

▲西南角整體透視圖

▲東立面透視圖

▲西立面效果圖
END