項目概況
業(yè)主三兄弟關系非常好,且各個事業(yè)有成,希望建一座大院居住在一起。
本項目坐北朝南,總建筑面積1346.7㎡,其中一層建筑面積612.7㎡,二層建筑面積471.8㎡,三層建筑面積262.2㎡。

▲總平面圖
戶型設計

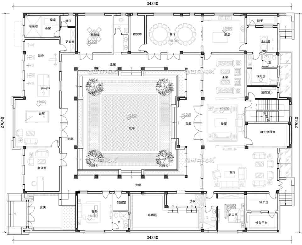
▲一層平面圖
院子朝南,四邊圍合,中間是天井,東為客房,南是休閑娛樂空間,西為廚房餐廳等,北為堂屋、客廳等主要空間;

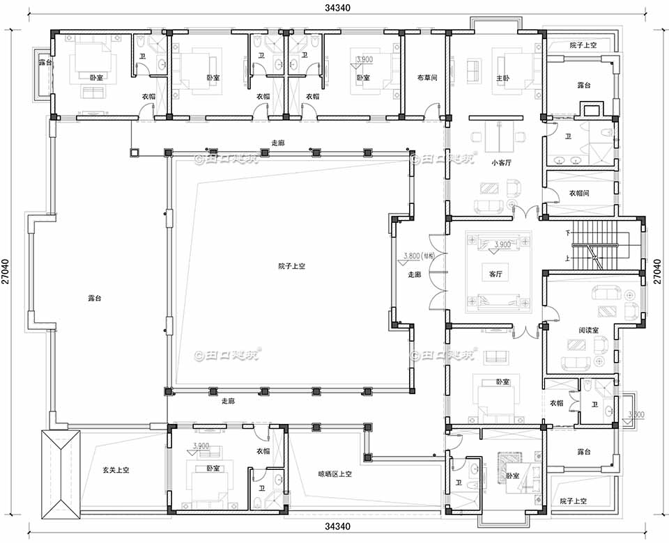
▲二層平面圖
五個小套房、兩個大套房以及客廳、閱讀室;

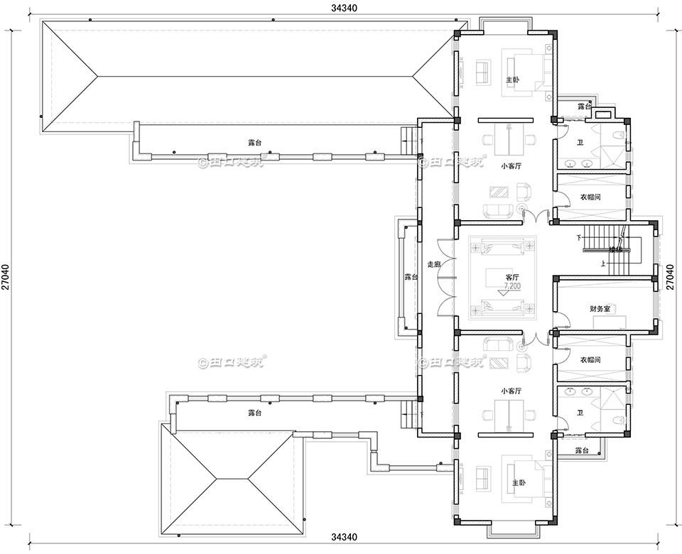
▲三層平面圖
兩個大套房、客廳、財務室;
造型設計

▲西南角鳥瞰圖

▲正立面透視圖

▲東立面透視圖

▲西立面透視圖

▲北立面透視圖

▲東南角入口透視圖

▲東北角透視圖

▲西北角透視圖

▲中庭南立面透視圖
END