項目概況
業(yè)主是醫(yī)務工作者,平常比較忙,希望將老家的房子起好,閑暇時光可以驅車回去小度假一下。
本項目總建筑面積267.3㎡,其中一層建筑面積138.4㎡,二層128.9㎡。

▲總平面圖
戶型設計

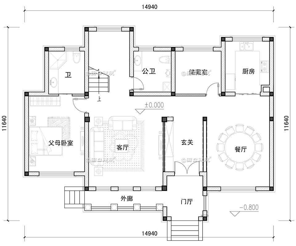
▲一層平面圖
玄關、客廳、餐廳、廚房、父母房帶衛(wèi)、儲藏室、公衛(wèi)、外廊、門廳;

▲二層平面圖
兩套房帶衛(wèi)(其中一套帶書房、衣帽)、小客廳、次臥、公衛(wèi)、露臺、陽臺;
造型設計

▲東南角鳥瞰圖

▲正立面圖

▲東南角透視圖

▲東立面透視圖

▲西立面透視圖

▲北立面透視圖
施工照片

▲主體落成
END